淀屋橋駅近く/共用部改修済みの1階奥区画・小規模サロン等に
| 物件No | K524 | ||
|---|---|---|---|
| 住所 | 大阪市中央区道修町 | ||
| 交通最寄駅 | 大阪メトロ 地下鉄御堂筋線 「淀屋橋駅」 |
||
| 徒歩 | 約5分 | バス | |
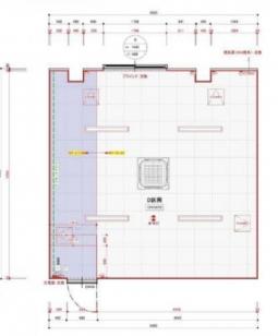
| 面積 | 9.65坪 (約31.90㎡) |
||
| 建物構造 | 鉄筋コンクリート造 | ||
| 所在階 | 1階 | ||
| 賃料(税込) | 143,000円 | ||
| 共益費(税込) | |||
| 保証金(敷金) | 敷金:1ヵ月分 礼金:2ヵ月分 |
||
| 解約引 | |||
| 引渡状態 | 事務所仕様 | ||
| 引渡時期 | 即入居可能 | ||
| 備考 | 淀屋橋駅至近のテナントビルにて、1階奥区画の募集です。 2025年に共用部の大規模修繕が完了しており、 館内は高貴でモダンな雰囲気に生まれ変わっています。 不特定多数の来客を伴わないサービス店舗であればご相談可能です。 小規模エステ・サロン・物販店など、まずはお気軽にお問い合わせください😊 24時間利用可能 ※時間外入館:平日21:00~7:00/土曜15:00~7:00/日祝は終日閉館 担当:久重 |
||















