

| 物件No | K511 | ||
|---|---|---|---|
| 住所 | 大阪府八尾市東本町3丁目 | ||
| 交通最寄駅 | 近鉄大阪線 「近鉄八尾駅」 |
徒歩 | 約5分 |
| バス | |||
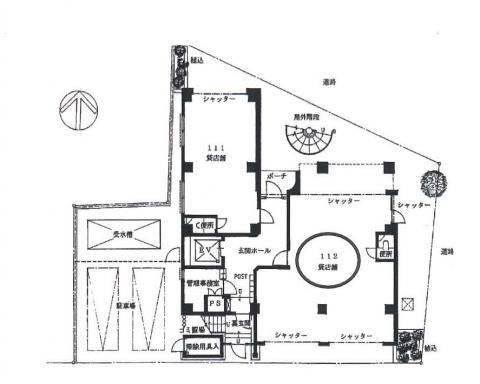
| 面積 | 26坪 (約85.95屐 |
建物構造 | 鉄骨造 |
| 所在階 | 1階 | ||
| 賃料(税込) | 231,660円 | ||
| 共益費(税込) | 31,460円 | ||
| 保証金(敷金) | 260万円 | ||
| 解約引 | 157.3万円 | ||
| 引渡状態 | スケルトン | ||
| 引渡時期 | 即入居可能 | ||
| 備考 | 交通利便性と生活利便性が高い「近鉄八尾駅」近くの1階テナント募集!! 駅周辺には、アリオ八尾やリノアスなどの大型商業施設や商店、飲食店、病院、市役所などの公共施設が集中しています。 業種などお気軽にお問合せください😊 前テナント:薬局 担当:久重 |
||
