

| 物件No | K506 | ||
|---|---|---|---|
| 住所 | 大阪市中央区北久宝寺町 | ||
| 交通最寄駅 | 地下鉄 「堺筋本町駅」 |
徒歩 | 3分 |
| バス | |||
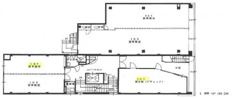
| 面積 | 約25坪 (82.64) |
建物構造 | 鉄骨鉄筋コンクリート造 |
| 所在階 | 1階 | ||
| 賃料(税込) | 328,350円 | ||
| 共益費(税込) | 46,200円 | ||
| 保証金(敷金) | 340万円 | ||
| 解約引 | 198万円 | ||
| 引渡状態 | 一部内装残予定 | ||
| 引渡時期 | 2025年12月予定 | ||
| 備考 | 堺筋の大通りに面した路面店舗の1階テナント募集!! 前テナントは不動産会社事務所でした。 貸室内に給排水は無いため、物販店やサロン、教室等のご利用におすすめです!! 店舗部分が約15坪、奥に事務所・倉庫が約10坪、合計25坪です。 お気軽にお問合せください😊 担当:久重 |
||
